首页 >> 数字资源 >>数字资源 >> 北宋城郭草市商业空间初探 ——基于对《清明上河图》的解读
详细内容

北宋城郭草市商业空间初探 ——基于对《清明上河图》的解读



摘要:北宋时期,政治经济体制、城市空间结构和商业管理机制的改变促进了草市的发展。通过历史纵向和空间横向的研究方法,基于对《清明上河图》的解读,浅谈城郭草市商业空间。发现城郭草市商业空间主要有以下特征:线型街道发展特征,街道空间的多功能特征,以及商业建筑空间的开放性特征。


关键词:北宋;草市;商业空间;《清明上河图》



前言:


北宋在经济、文化、艺术、技术等方面都有突出的成就,《生活杂志》在1998年选出过去一千年来影响人类生活最深远的一百件大事,第五十六件很有意思——中国宋代的饭馆和小吃。当然,这个也包括当时的茶馆、酒店等商业空间,以及其背后的社会和历史文化。因此,选取北宋最具活力的草市商业空间进行研究,作为一个切入点来了解那个时代。


北宋距今时代久远,开封作为当时的都城,处于黄泛区,建筑实物遗存几乎难以找到,开封现存的北宋建筑仅有两栋,铁塔和繁塔。选择实物研究几乎不可能。描绘北宋时期社会民俗百态的有两部巨作,张择端所作的《清明上河图》的图画记录以及孟元老所著的《东京梦华录》的文字记载。主要是基于对《清明上河图》的解读,辅以《东京梦华录》对北宋城郭草市商业空间进行研究。



1 、概念解读


1.1 何为草市?


“草市一语,至少从东晋以来就已经存在”[1]。最初的意义是指“秣市”,即草料市。宋代的草市已经发展成为各类小商品市场的概念。文中草市主要指州县近郊出现的非官方市场,即城郭草市。“宋代城市中的各类期日市场,是乡村关系渗进城市的范例”[2]。当然,北宋时期国家分布着各种各样的草市。在宏观角度上,傅宗文先生所著的《宋代草市镇研究》已经十分清楚。而文章落脚于《清明上河图》中所展示的城郭草市商业在具体的建筑空间层面结合历史文化背景进行解读和分析。


1.2 关于《清明上河图》


《清明上河图》是北宋徽宗在位的宣和年间,宫廷画家张择端描绘北宋首都东京(今开封)的社会风俗的界画。现存的《清明上河图》全球约有五六十幅,主要分为三个系统:以石渠宝笈三编本为代表的宋代《清明上河图》系统,明代著名画家仇英的“仇英本”系统,以及清代宫廷画家画的“清院本”系统。由于后两个系统不可避免地加入了各自的时代背景,基于真实性的考量,选取了北京故宫博物院馆藏的石渠宝笈三编本进行研究。



图1 石渠宝笈三编本(上),“仇英本”(中)和清院本(下)《清明上河图》虹桥片段(图片来源:扫描版石渠宝笈三编本(上),“仇英本”(中)和清院本(下)《清明上河图》)

据《东京梦华录》,“以东水门外七里曰虹桥,其桥无柱,皆以巨木虚架,饰以丹,宛如飞虹……”[3]可以推测出《清明上河图》所描绘的地理位置,基本位于当时开封府的东南方。研究对象即是东水门外的城郭草市的商业空间。



2 、唐宋草市发展


公元10世纪左右,中国的城市发生了本质的变化。唐朝时期实行严格的坊市制度。一百零八个坊用来居住,其余两个市专门用作买卖。中唐后,社会和经济的发展以及人口的增长,在州县近郊形成了一些草市,如僧人虚中描绘洞庭湖某水岸“浪没货鱼市,帆高卖酒楼”[4],还有浔阳江岸早晨的菜市等。这些草市的兴起,结构相对简单而不集中分布。另外,从中宗景龙元年下敕规定“非州县之所不得置市”,可见在当时的政治背景下,草市的发展都是受到制约的。


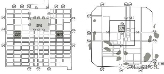
图2 唐长安(左)和宋汴京(右)商业分布图(图片来源:作者自绘)


图3 城郭草市沿河道和主要道路发展(图片来源:作者自绘)


图4 商业建筑的灰空间类型(图片来源:作者自绘)


到了宋朝初期,首都开封仍是实行坊市制度。但坊的城墙已被逐步拆掉,坊已由过去的封闭式转向敞开式。商业空间由原来的东西市转变成集市分布与全城各处。据《东京梦华录》“御街:自宣德楼一直南去,约阔二百余步,两边皆御廊,亦有市人买卖。”[3]此外,在卷三《马行街北诸医铺》,卷二《东角楼街巷》中均有类似记载。加之,宋朝重经济不重防御,所以当时的草市有了相对合法的地位。各类行业的发展,促成了当时草市类型的丰富性。到了后期,某些草市的规模竟可以与官市媲美。相对于唐代的草市,由于城市格局、管理制度、社会生活的发展,宋代的草市空间、类型有了较大的发展。



3 、草市商业空间特征


3.1 线型街道发展特征


相对于唐朝面状集中的官市,宋朝的官市已经呈现出线型的街道空间发展。除了御街两侧的灯火辉煌,如“西宫南皆御廊杈子,至州桥投西大街,乃果子行。街北都亭驿,相对梁家珠子铺。余皆卖纸画花果铺席”[3]。官市的街道主要以某种商品为主,称为“行”或者“市”。州城外的草市商业也呈线性街道空间发展,当然有一部分原因是受官市经营模式的影响,更主要的原因还是沿河道或者沿道路发展形成的(图3)。


3.1.1 沿河道发展


沿河布置草市,一方面利于货物的运输,另一方面运河承载了数量庞大的工作人员,提供了消费人员。北宋定都开封一个主要的原因就是漕运。后周世宗柴荣,下召开挖疏通运河,到宋已基本形成以开封为中心的运河系统,北达齐鲁,南至江淮、苏浙。《清明上河图》中共出现两个码头,在码头附近都存在较为集中的商业。通过清数,《清明上河图》中以漕船、码头为依托,描绘了约140人的活动,其中包括纤夫、船工、乘客以及搬运军士等,占整卷总人数的17%左。可见漕运工作人员基数庞大,为草市的发展提供了客源。


3.1.2 沿主要道路发展


货物以及远程的往来主要靠船只,而近距离的往来则主要依赖道路。宋朝法制虽然没有限制草市的发展,但也没有给予草市各种官市的特权。比如画面中出现的孙羊正店和十千脚店。州城的孙羊正店是有资格酿酒的,而草市中的十千脚店必须从正店买入,而且同类型的店铺在草市之中也存在竞争。这种不公平对待激发了草市作为“草根”的竞争意识,在当时就已经形成类似市场经济的思想,沿主要道路分布就意味着更多的客源跟收入。


3.2 街道空间的多功能化特征


3.2.1 商业类型的多功能性


宋朝时,由于技术的发展以及商业领域的拓宽,人们日常生活需要也越多,商业功能也越来越多样。“市民打破了商业区和住宅区的限制,在空地上有摊贩、街头艺人表演、说书活动”[5]。据资料记载,当时的汴京城里至少有一百六十行。简单的一段《清明上河图》,我们就可以发现,有经营祭品的“王家纸马店”,有操刀卖肉的屠户,虹桥上有出售铁器绳索的,街心有制作车轮的木匠,有卖烤烧饼、卖水果的小贩,还有各式的酒店,在城门下面甚至还可以发现一家理发店。可见当时草市商业功能的丰富性,并且不以哪一种功能为主,混合程度较高。


3.2.2 街道活动的多样性


宋代文化娱乐产业发展,带来了街道活动的多样性,以致出现著名的“瓦肆勾栏”,“霍四究说三分,尹常卖五代史”。街道高宽比相对较大大,是街道空间较为灵活是另一个原因。观察还可以发现,活动还包括街边的说书,甚至有送外卖的,还有《清明上河图》中对于虹桥两侧行船的惊险描绘,街上的众人也都变成了汴河故事的观众。


3.3 商业建筑的开放性特征


唐代的坊市的高墙在宋朝被瓦解,不仅布局变得自由,建筑单体也变得更加开放。建筑面对街道的不再是高大的石墙,而是通过各式各样的灰空间与街道相连。通过对《清明上河图》的仔细观察总结,主要有以下四种开放性灰空间类型:建筑檐下空间,建筑内凹空间,建筑外搭建空间,和移动式摊点空间四种类型。建筑檐下空间通常用于摆放商品,如图中所示的包子店。建筑内凹空间一般出现在街角,重要节点位置,通常功能用作茶馆或者餐馆,凹进来的空间不仅提高了建筑的开放性,也拓展了街道空间。由于缺少相应的控制,建筑外搭空间在草市中随处可见。通过加建屋顶,外搭布料、茅草和竹席等,在一定程度上使街道空间利用率更高,但也存在着侵占街道的隐患。移动式摊点建筑集中分布在虹桥附近,布局较为灵活,功能更加丰富,包括占卜、售卖饮子等,大大激活了街道空间。



4 、小结


北宋时期,由于体制上重视经济文化,城市结构倾向于开放,以及管理机制上的撤除宵禁,相对于唐代,草市商业空间有了较大的发展。北宋时期城郭草市发展主要有以下三个特征:其一,沿主要道路和河流,呈线型分布;其二,街道商业功能以及活动的多样性发展;其三,商业建筑单体空间的开放性发展。北宋时期的草市商业空间,改变之前的封闭状态,促进了商品经济的发展,开拓了封建时期的空间类型。对于城郭草市商业空间的分析从历史纵向和空间横向两个层面进行,对研究当时的风俗人情具有参考意义。



参考文献:

[1]加藤繁 著.中国经济史考证[M].北京:商务印书馆,1962: 307.

[2]傅宗文 著.宋代草市镇研究[M].福州:福建人民出版社,1989: 207-208.

[3]孟元老 撰 邓之诚 注.东京梦华录注[M].北京:中国书局出版,1982: 27-52.

[4]彭定求、沈三曾、杨中讷等著.全唐诗[M].扬州:扬州诗局刻本,1706:9604.

[5]野岛刚 著.谜一样的清明上河图[M].北京:社会科学文献出版社,2014: 10.


作者简介:范兴雷,重庆大学建筑城规学院研究生

来源:知网





关注我们



关注《清明上河图》

走进不一样的世界








联系电话:0371-22387803

邮箱:xk@qmsht.cc

地址:开封市龙亭东路开封文化客厅301室 

Copyright 2012-2019 , 开封市清明上河图研究会 , All Rights Reserved 

扫码关注公众号

  • 电话直呼

    • 13723229633
    • 0371-22387803
  • 请关注我们吧!

技术支持: 开封网站建设中心 | 管理登录
seo seo